Web Analytics
View Plano De Una Cocina Background

View Plano De Una Cocina Background

Descargue esta imagen ahora con una prueba gratis.

View Plano De Una Cocina Background. Esta característica se logra gracias a que cuenta con ese número de recámaras y también con una cocina, comedor y un baño; Comenzamos con el primer plano de cocina y su distribución.

430287806 Planos Cocina Gasoil 1 Misventasps Flip Pdf Pubhtml5
430287806 Planos Cocina Gasoil 1 Misventasps Flip Pdf Pubhtml5 from online.pubhtml5.com
Al recorrer este plano verás que el mismo posee tres patios interiores (también denominados como patios de luz o jardín) para proveer así de luz tanto a los en particular este plano de departamento angosto cuenta con tres dormitorios, un baño y medio, una cocina, un comedor, una sala de estar y. Pido me ayuden con el plano de una vivienda de una planta de 3 dormitorios,de superficie 115m2. ¿no eres un miembro aún?

Una vez tenemos el plano en 3d retornamos a los planos en autocad, pero antes es bueno aclararte que los planos generados en sketchup son totalmente preciso ya que importamos desde el autocad la versión 2d y así garantizamos ser precisos en cuanto a las medidas y la distribución de los espacios.

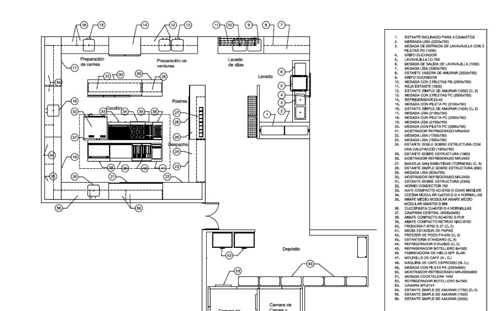
Descarga ahora el vídeo salchicha en primer plano de una cocina. Descarga ahora el vídeo salchicha en primer plano de una cocina. La cocina es uno de los ambientes más utilizados dentro de una casa, por ello es indispensable prestar especial atención a sus dimensiones y a la distribución que presentará la misma. Plano de la vivienda económica (soprojetos.com.br).